VILLA BANKYA

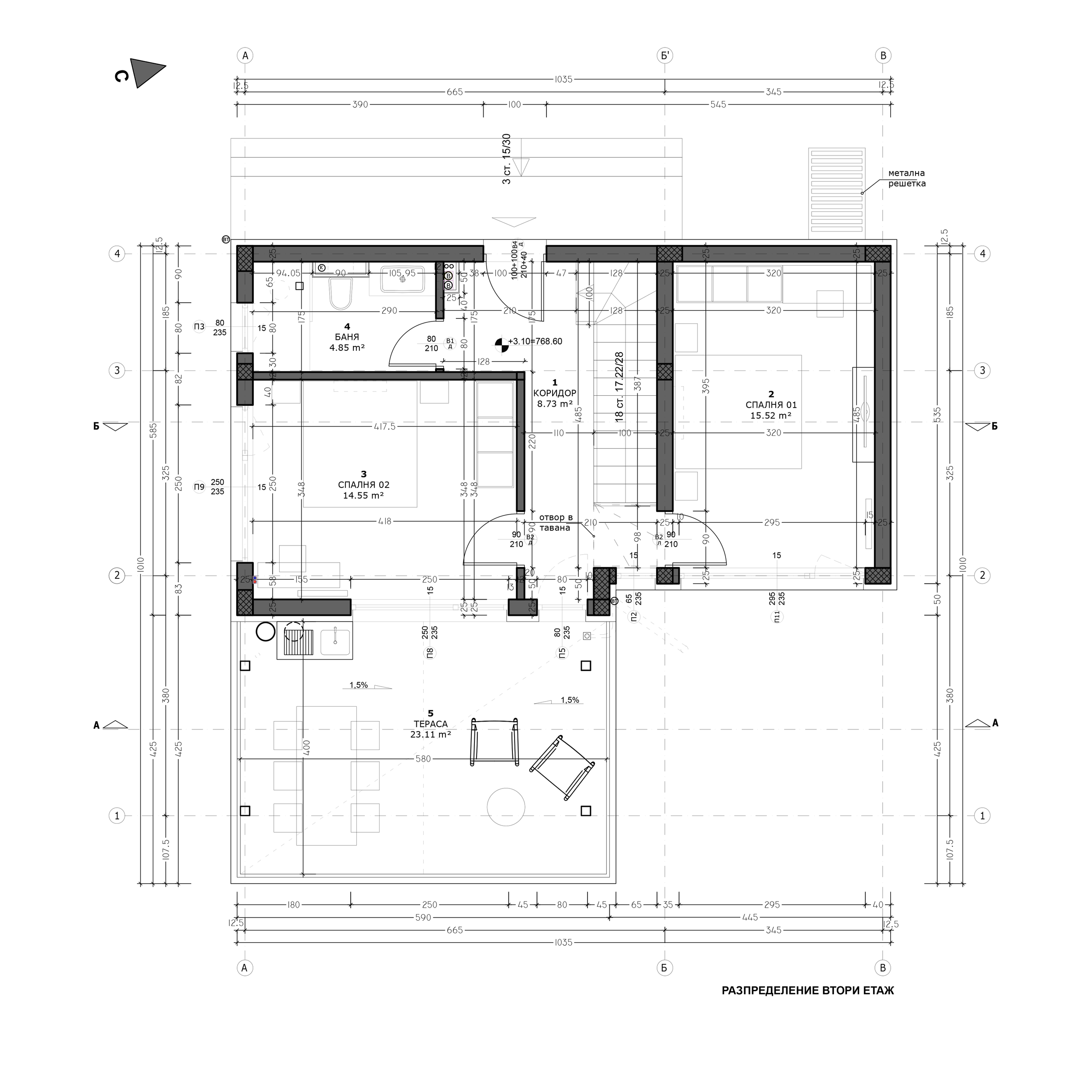
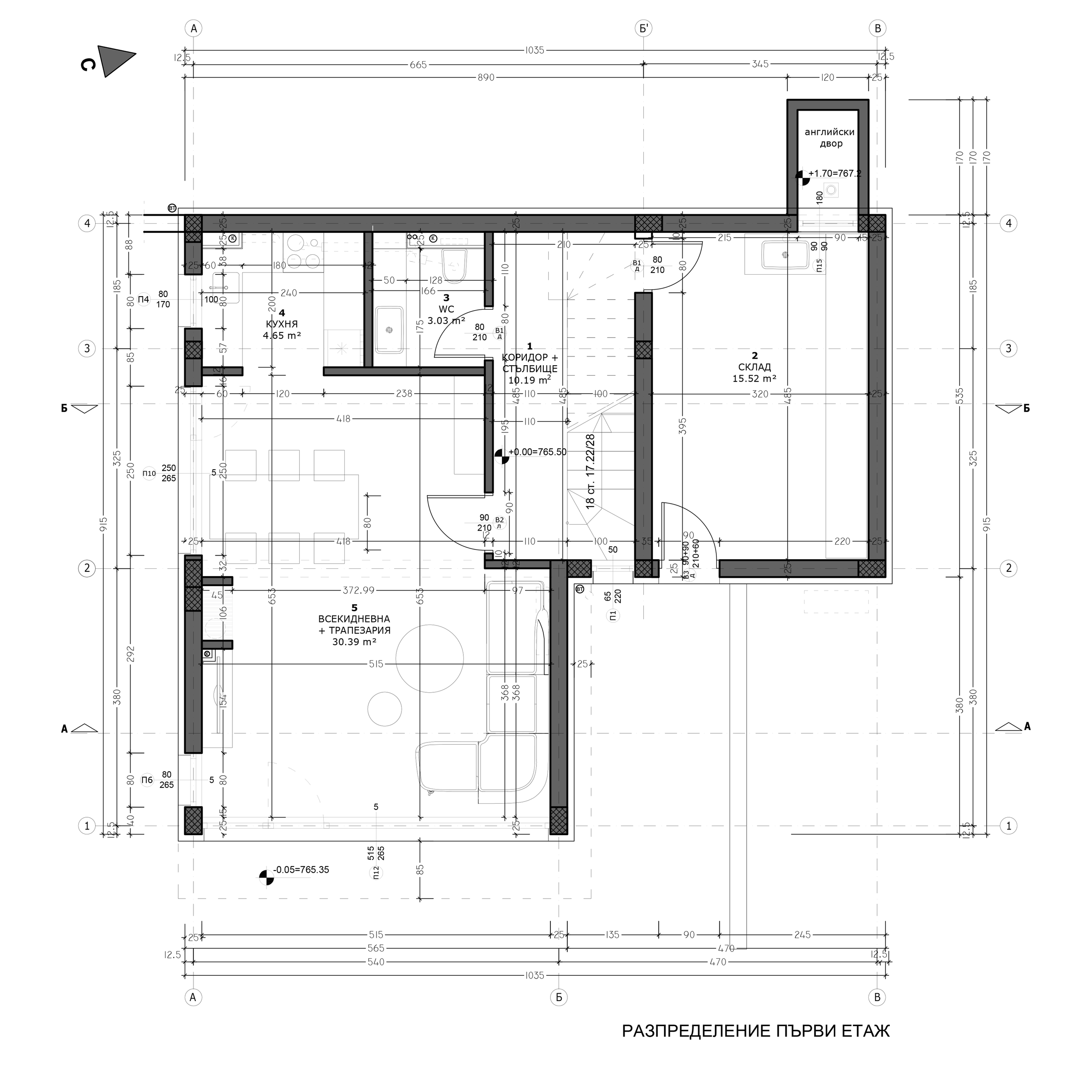
Проектът представлява двуетажна къща, разположена в тих и озеленен парцел в Банкя – район, известен с чистия си въздух, минералните извори и близостта до природата. Къщата е замислена като вила за почивка през уикендите, съчетаваща уединение и комфорт, на по-малко от 30 минути от центъра на София. Имотът е с богата дървесна растителност, която създава естествена сянка, усещане за уединение и зелена рамка около сградата. При проектирането бе поставен ясен приоритет: да се запази максимално естественият характер на мястото, като архитектурата деликатно се впише в терена и заобикалящата среда. Желанието на клиента за силна връзка с природата е реализирано чрез просторни тераси на двете нива – на първия етаж те плавно разширяват дневната зона навън, като я свързват директно с двора, а на втория създават възможност за открити гледки към далечния хоризонт. Фасадата използва естествени материали – дърво, бетон и стъкло – които хармонират с пейзажа и подчертават желанието за естествена и ненатрапчива естетика. Проектът отразява желанието на клиента за спокойно място сред природата, което предлага възможности за почивка, работа и съзерцание. Къщата  не просто заема пространство – тя съжителства с дърветата, светлината и гледките.

ЛОКАЦИЯ ГР. БАНКЯ

ПЛОЩ 173 КВ.М

ГОДИНА 2022

СТАТУС ТЕХНИЧЕСКИ ПРОЕКТ

Previous
Previous

FOREST MAGIC

Next
Next

KA APARTMENT